西宮市仁川町3丁目 売り土地
ぜひ一度見ていただきたい、「西宮市仁川町3丁目 売り土地」です。快適な環境の整った、好条件のこちらの土地は1億1,200万円です。住宅用地なので住みやすい環境が整っており、戸建てをお考えの方におすすめです。西宮市エリアに詳しい当社なら、土地情報だけでなく住環境も一緒にご案内することが可能です。快適に暮らせる阪急今津線仁川周辺の情報もございますので、ぜひお気軽にお問い合わせください。
ローンシミュレーションこの物件を購入した場合の、月々の支払い価格の一例です。借り入れを保証するものではございません。
- 返済期間
-
- 金利
-
- ボーナス時の増額(1回分)
-
- 借入金額:
-
- 頭金:
-

- 毎月の返済額:
(※元利均等方式 金利5.00%まで ※返済年数5~50年まで入力できます)
(※ボーナスは年2回で計算しています。1000万円まで入力できます)
(※物件購入時、その他諸費用が発生する場合がございます)
担当者のコメント 金田和浩

- 納得の好条件で1億1,200万円。是非ご検討ください。駅まで徒歩5分の好立地です。専用庭付でお花や木など育てられて素敵な庭も実現できます。新しい住まいをお考えの方に、好条件の住宅用地はこちらです。地元に詳しいスタッフの揃う当社は、不動産情報の鮮度と濃さが自慢です。住まい探しをするお客様のこだわりを、ぜひスタッフにお聞かせください。全力でサポートいたします。
ポイント・特徴
物件概要
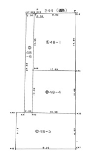
【売地】 物件番号:100180391 情報更新日:2026年01月11日 次回更新予定日:2026年01月25日| 所在地 | 兵庫県西宮市仁川町3丁目 | ||
|---|---|---|---|
| 交通 | |||
| 価格 | 1億1,200万円 | ||
| 土地の敷金/保証金 | -/- | 借地料/借地期間 | -/- |
| 土地面積(坪数) | 265.64㎡(80.35坪) | 坪単価 | 139.39万円 |
| 私道負担面積/セットバック |
49.37㎡/済 私道負担割合 : 1/1 |
高圧線下面積 | - |
| 傾斜地部分面積 | - | 路地状敷地 | - |
| 土地権利 | 所有権 | 接道状況 | 二方(北 公道 4.3m)(西 私道 4.0m) |
| 都市計画 | 市街化区域 | 用途地域 | 第一種低層住居専用 |
| 建築条件 | - | 地目/地勢 | 宅地/平坦 |
| 建ぺい率 | 40% | 容積率 | 100% |
| 総区画数 | - | 販売区画数 | - |
| 国土法届出要否 | 不要 | その他の法令上の制限 | - |
| 取引態様 | 一般媒介 | 現況 | 古家有 |
| 引渡時期 | 相談 | 引渡条件 | 現況渡 |
| 最適用途 | 住宅用地 | ||
| 物件番号 | 100180391 | 取引条件の有効期限 | 2026年01月25日 |
| 設備条件 |
|
||
| 備考 | こだわりポイント満載の西宮市仁川町3丁目 売り土地。駅まで徒歩5分の好立地です。こちらの住宅用地は周辺環境も整っており、快適な生活を期待できます。満足のいく環境が整った1億1,200万円の土地です。あなたの住まいへ求める条件は何ですか。ぜひ住まいのプロである当社スタッフへ、あなたのこだわりをお聞かせください。住まい探しを全力でサポートいたします。 | ||
| 取扱会社 |
|
||
※地図上に表示される物件の位置は付近住所に所在することを表すものであり、実際の物件所在地とは異なる場合がございます。

















